Likvidavräkning - Fastighet Bostadsrätt 2026

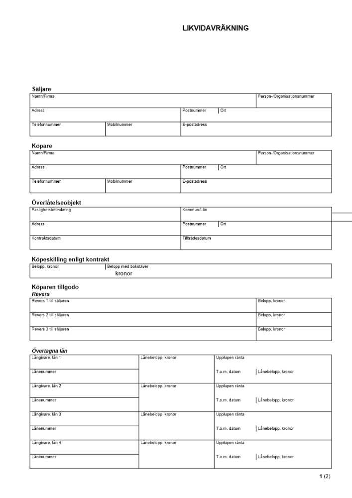
En likvidavräkning är en ekonomisk sammanställning som görs vid en överlåtelse, exempelvis av en fastighet eller bostadsrätt. Den visar hur den slutliga betalningen ska beräknas och regleras mellan köpare och säljare.

I likvidavräkningen ingår vanligtvis:

  • Köpeskilling (det avtalade priset)
  • Handpenning (som redan betalats)
  • Eventuella justeringar (t.ex. för räntor, avgifter eller förskottsbetalningar)
  • Slutligt belopp att betala

Syftet är att skapa tydlighet och säkerställa att båda parter är överens om den ekonomiska uppgörelsen.

Specifikation

  • Likvidavräkning - Fastighet Bostadsrätt 2026
  • 20274
  • 1,60
  • Svenska
  • 13
  • 2
  • docx
495 kr
Välj din plan

Med vårt abonnemang får du obegränsad tillgång till alla våra dokument och guider